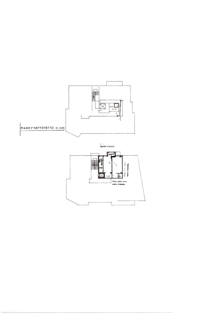
Bilocale ristrutturato – libero subito
Ad.ze Viale Umbria: in complesso con ampio verde condominiale, posto biciclette, ascensore e servizio di portineria, proponiamo in vendita bilocale di mq. 47 ristrutturato e libero subito. L’immobile si presenta con ingresso, soggiorno, cucinotto, camera con cabina armadio e balcone, bagno finestrato e solaio di pertinenza. Esposizione interna e silenziosa. Ideale anche per investimento. € 270.000
Poss.tà di acquisto box auto all’interno del condominio. € 35.000
Poss.tà di acquisto box auto all’interno del condominio. € 35.000




















